
Важкий підйомний кран, двоступеневий баштовий кран 30 тонн
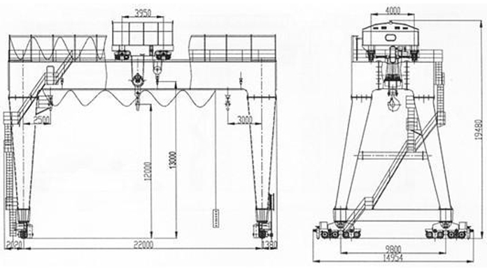
Двобічний козловий кран з гачками застосовується за межами складу або залізничного шляху, щоб робити спільні підйомно-розвантажувальні роботи. Цей вид крана складається з моста, опорних ніжок, рухомого кран-органу, тролейбуса з сильною підйомною лебідкою, електрообладнання та системи управління. Як важкий дизайн, він може бути широко використаний у всіх видах промислової сфери.
вантажний кран, двократна козлова крани 30 тонн
Двобічний козловий кран з гачками застосовується за межами складу або залізничного шляху, щоб робити спільні підйомно-розвантажувальні роботи. Цей вид крана складається з моста, опорних ніжок, рухомого кран-органу, тролейбуса з сильною підйомною лебідкою, електрообладнання та системи управління. Як важкий дизайн, він може бути широко використаний у всіх видах промислової сфери.