
Електричний однокамерний підйомний кран типу Європейський підйомник типу HD
Європідйомний кран є єдиним підйомним механізмом, розробленим та виготовленим у строгій відповідності до стандартів FEM та DIN, які мають передові технології та гарний дизайн. Розділений на загальний тип та тип підвісу, що підтримує використання електричного підйомника європейського стандарту, підходить для майстерні та складського матеріалу, великих деталей точного складання та інших місць.
Електричний однокамерний підйомний кран типу Європейський підйомник типу HD
Короткий опис:
Європідйомний кран є єдиним підйомним механізмом, розробленим та виготовленим у строгій відповідності до стандартів FEM та DIN, які мають передові технології та гарний дизайн. Розділений на загальний тип та тип підвісу, що підтримує використання електричного підйомника європейського стандарту, підходить для майстерні та складського матеріалу, великих деталей точного складання та інших місць.
Він може широко використовуватися в машинобудуванні, металургії, нафтовій промисловості, озеленення, порт, залізничний, цивільна авіація, харчова промисловість, виробництво паперу, будівництво, цех електронічної промисловості, складські та інші ситуації з обробкою матеріалів, в т.ч. застосовується для обробки матеріалу, що потребує точного позиціонування, великих компонентів точного складання ситуації.
Детальні зображення:
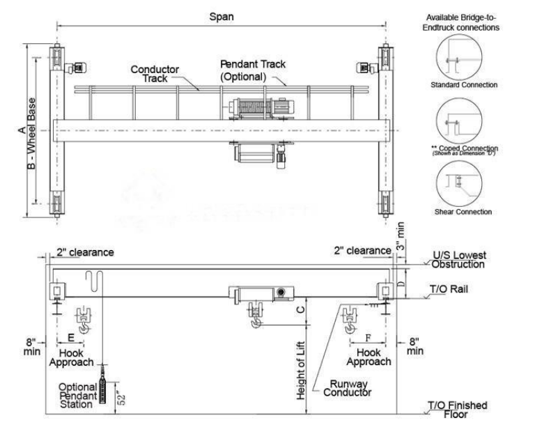
Ескіз малюнка:
Технічні параметри:
Спан | м | 7.5 | 10.5 | 13.5 | 16.5 | 19,5 | 22.5 | 25,5 |
Потужність | т | 1 ~ 12,5т | ||||||
Загальна вага | кг | 1781 ~ 12086 | ||||||
Вага візка | кг | 405 ~ 740 | ||||||
Макс. Колісний вантаж | кн | 13,5 ~ 90,94 | ||||||
Подорож залізничний | P24 ~ P43 | |||||||
Швидкість підйому | м / хв | 0.8 / 5 | 0.8 / 5 | 0.8 / 5 | 0.8 / 5 | 0.8 / 5 | 0.8 / 5 | 0.8 / 5 |
Висота підйому | м | ≥ 6 | ≥ 6 | ≥ 6 | ≥ 6 | ≥ 6 | ≥ 6 | ≥ 6 |
Загальна потужність двигуна | кВт | 4.31 | 4.31 | 4.31 | 4.31 | 4,67 | 4,67 | 4,67 |
Швидкість крану | м / хв | 3-30 | 3-30 | 3-30 | 3-30 | 3-30 | 3-30 | 3-30 |
Тролейбусна швидкість | м / хв | 2-20 | 2-20 | 2-20 | 2-20 | 2-20 | 2-20 | 2-20 |
Робочий обов'язок | M5 / A5 |